Verkocht:It Mediel 10, 8628 EV Goënga - Foto
Verkocht
+46

It Mediel 10 8628 EV Goënga

  • Woonhuis
  • 5 kamers
  • 1 badkamer
  • Bouwjaar 1979
  • 622 m² perceeloppervlakte
  • 130 m² gebruiksoppervlakte
  • C Energielabel C

Beschrijving

Op een prachtige locatie in het pittoreske dorp Goënga (nabij Sneek), staat deze ruime eengezinswoning aan vaarwater met garage en eigen oprit.

Het beste van twee werelden komt samen bij de woning die YB Makelaardij in de verkoop heeft gekregen. De woning bevindt zich aan vaarwater, welke in verbinding staat met het Sneekermeer, je vaart met een sloep of een valkje zo het Sneekermeer op.

De woning is gebouwd in 1979, het betreft een zeer ruime eengezinswoning met 4 slaapkamers, garage en ruime bergzolder. De woning is geschakeld middels de garage. Er is genoeg parkeerruimte zowel in de straat als een eigen oprit en voor de kinderen is er een leuk speelveldje voor de woning.

Indeling

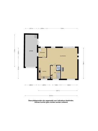
Begane grond
hal/entree met meterkast, toilet, garderoberuimte en trapopgang.
Ruime woonkamer voorzien van schuifpui naar de heerlijke ruime achtertuin en een houtkachel in de sfeervolle zithoek.
Open keuken, met diverse inbouwapparatuur en vrij zicht vanuit je keukenraam.
Vanuit de keuken heb je toegang tot de bijkeuken, waar de wasmachine en droger staan opgesteld. Vanuit de bijkeuken kom je in de ruime garage welke toegankelijk is vanaf de straatzijde en vanaf de tuin.

1e verdieping
Ruime overloop met toegang tot maar liefst 4 slaapkamers en een badkamer. Daarnaast is er middels een vlizo trap toegang tot de bergzolder die zich over de gehele woning bevindt.
Tegenover de trapopgang, is de badkamer. Door de dakkapel is de badkamer zeer ruim met onder andere een ligbad, tweede toilet en een douchecabine. Vanuit het raam heb je zicht op het kaatsveld en de weilanden.

Zolder
De riante zolderverdieping boven de woning heeft stahoogte en is toegankelijk met een vlizotrap.

Tuin
De woning heeft een eigen achterom maar je kan ook middels de garage de tuin betreden. De woning bevindt zich op een perceel van maar liefst 622m², een zeer ruime tuin met veel privacy. De achtertuin is gelegen op het zuidwesten waardoor je de hele dag kan genieten van de zon.
Vanaf de steiger kijk je heerlijk over het water naar de weilanden, de tuin grenst aan een opvaart die naar de Sneeker Oudvaart loopt. En heb je zicht op de idyllische oude dorpskern van Goënga.

Pluspunten van de woning:
- Perceel grootte 622 m²
- Woonoppervlak ca. 130 m²
- Bouwjaar: 1979
- Energielabel C
- Garage
- Aan vaarwater, aan een opvaart die naar de Sneeker Oudvaart loopt.
- 4 (slaap)kamers op de verdieping
- Prachtige vrije zichtlijnen
- Gewaardeerde woonomgeving nabij Sneek
- Een 'niet bewoningsclausule' is van toepassing.

Goënga is een sfeervol dorp ten noorden en op een afstand van ongeveer 3 km van Sneek. De dorpskern bevat veel fraai gerestaureerde karakteristieke woningen. De vele bomen geven het een lommerrijk aanzien. In de omgeving van Goënga zijn prachtige wandel en fietspaden, geniet hier van de rust en natuur. Laat je verassen door de diversiteit en schoonheid van deze mooie omgeving. Goënga heeft een prachtig kaatsveld centraal in het dorp en een actief verenigingsleven. Deze woning wordt omringd door de natuur maar toch op fietsafstand van diverse voorzieningen en de stad Sneek. Zo heb je aan de ene kant het Sneekermeer en het recreatiegebied de Potten, aan andere kant het dorp Scharnegoutum met supermarkt, basisschool en kinderopvang (1.8km) en op fietsafstand van de stad Sneek
Daarnaast is het dorp voorzien van openbaar vervoer met een bushalte om de hoek van de woning.

Wil jij wonen aan het water in alle rust maar toch alle faciliteiten op fietsafstand, maak dan snel een afspraak op ybmakelaardij.nl

Aan deze informatie kunnen geen rechten worden ontleend.
De Meetinstructie is gebaseerd op de NEN2580. De Meetinstructie sluit verschillen in meetuitkomsten niet volledig uit, door bijvoorbeeld interpretatieverschillen, afrondingen of beperkingen bij het uitvoeren van de meting.

Bezichtiging uitsluitend via de makelaar.

Kaart

Kenmerken

Overdracht

Referentienummer
00010
Vraagprijs
€ 525.000,- k.k.
Status
Verkocht
Aanvaarding
In overleg
Laatste wijziging
Donderdag 28 augustus 2025

Bouw

Type object
Woonhuis, eengezinswoning, geschakelde woning
Soort bouw
Bestaande bouw
Bouwperiode
1979
Dakbedekking
Dakpannen
Type dak
Zadeldak
Isolatievormen
Dakisolatie
Grotendeels dubbel glas
HR-glas
Muurisolatie

Oppervlaktes en inhoud

Perceeloppervlakte
622 m²
Woonoppervlakte
130 m²
Woonkameroppervlakte
55 m²
Keukenoppervlakte
15 m²
Inhoud
625 m³
Oppervlakte overige inpandige ruimten
39 m²
Oppervlakte gebouwgebonden buitenruimte
14 m²

Indeling

Aantal bouwlagen
3
Aantal kamers
5
Aantal badkamers
1

Locatie

Ligging
Aan vaarwater
Beschutte ligging
In woonwijk

Tuin

Type
Achtertuin
Hoofdtuin
Ja
Oriëntering
Zuid-west
Heeft een achterom
Ja
Staat
Prachtig aangelegd

Energieverbruik

Energielabel
C

CV ketel

CV ketel
Intergas
Warmtebron
Gas
Bouwjaar
2021
Combiketel
Ja
Eigendom
Eigendom

Uitrusting

Warm water
CV-ketel
Verwarmingssysteem
Centrale verwarming
Badkamervoorzieningen
Douche
Ligbad
Toilet
Wastafel
Parkeergelegenheid
Aangebouwde stenen garage
Parkeerplaats
Heeft kabel-tv
Ja
Heeft een rookkanaal
Ja
Tuin aanwezig
Ja
Heeft een garage
Ja
Heeft een dakraam
Ja
Heeft een schuifpui
Ja
Heeft zonwering
Ja
Heeft zonnepanelen
Ja

Kadastrale gegevens

Kadastrale aanduiding
Scharnegoutum B 999
Perceeloppervlakte
622 m²
Omvang
Geheel perceel
Eigendomsituatie
Eigen grond